Резервуары и металлоконструкции
от завода-производителя

Доставка по всей России!

slide-s02

Двустенный горизонтальный резервуар РГСД-50 м3

Двустенный горизонтальный резервуар РГСД– 50 м3

Для накопления, хранения и подачи в технологический процесс жидких и вязких веществ встает вопрос подбора подходящей емкости. Стальные резервуары зарекомендовали себя как многовариантное, долгосрочное решение этого вопроса. Производитель – Завод Резервуаров и Негабаритных Металлоконструкций, предлагает купить двухстенные горизонтальные резервуары РГСД – 50 м³, высокого качества, по оптимально невысокой цене.

Варианты исполнения резервуаров РГСД-50 м3

Завод РиНМ производит РГСД – 50 м³ по техническим условиям ГОСТ 17032-2010 и ГОСТ Р 34347-2017, с учетом отраслевых особенностей.

Стальные резервуары, с двойным корпусом, вместимостью 50 м³ подразделяются:

  • по типу установки: наземная или с заглублением в грунт;
  • по внутреннему пространству: с делением на отсеки или целым объемом;
  • по эксплуатационным требованиям: в зависимости от рабочей среды и климата на месте установки;
  • по виду терморегуляции: теплоизоляция, или нагревательные элементы.

Наши заказчики могут рассчитывать на внесение в проект индивидуальных требований, отвечающих нормам безопасности. Для простоты заказа разработана форма опросного листа.

Особенности конструкции РГСД-50

Двухстенный горизонтальный резервуар представляет собой стальной полый цилиндр, помещенный в другой цилиндр, такой же формы, но большего размера. Пространство между стенками – 4 мм. Оно заполняется инертным газом или тосолом.

Внутренняя и внешняя часть конструкции произведены по сварочной технологии из стальных вальцованных листов. Сварными элементами являются детали торцов, днище и обечайки корпуса.

Таблица 1. Типовые размеры конструкции

Длина, мм Диаметр, мм Высота, мм Вес, кг
9600 2800 3450-4200 6500

Большой объем резервуара дает возможность установки одной или нескольких внутренних перегородок. Надежно изолированные отсеки позволяют организовать компактное хранение разных веществ.

Для обслуживания емкости имеются люки – количество по числу отсеков. При подземном исполнении высоту внешней части колодца люка увеличивают. Для установки оборудования предусмотрены патрубки.

Конструкция укреплена ребрами жесткости: в виде колец по окружности полости, или треугольными диафрагмами в местах крепления опорных ложементов. По периметру смотровых люков и в местах установки патрубков усиление обеспечено дополнительной стальной накладкой.

Элементы конструкции рассчитаны на устойчивость: к подвижности грунта, к давлению рабочей среды, к действию ветровой и снеговой нагрузки.

Использование двухстенной конструкции корпуса повышает надежность герметичности, продлевает срок службы и обеспечивает безопасную эксплуатацию.

Назначение двустенных горизонтальных резервуаров

Стальные емкости с 2 стенками предназначены для хранения горючих и взрывоопасных веществ и жидкостей 1, 2, 3, 4 класса опасности. РГСД, объемом 50 м3 находит применение и успешно используется:

  • на нефтеперерабатывающих заводах и автозаправочных станциях;
  • в производстве пищевых продуктов – для приема-раздачи сырья;
  • в системах автономного водоснабжения;
  • в химической отрасли для хранения и подачи реагентов и растворов;
  • на крупных транспортных предприятиях – для хранения ГСМ.

Стойкость к химии, горюче смазочным материалам и нефтепродуктам обусловлена применением соответствующих марок стали.

Материалы РГСД-50 м3

Выбор стали и способы защиты ее от коррозии определяют: тип установки, рабочая среда, климат в месте эксплуатации.

Таблица 1. Марки стали, параметры проката и защитного покрытия

Наименование Наземная установка Установка с заглублением в грунт
Листовая сталь В умеренно холодном климате Ст 3сп, 10Г2, 16ГС, в холодном климате 09Г2С 09Г2С, 10Г2С1 нержавеющие марки 12Х18Н10Т, 08Х18Н10
Толщина листа, мм 4-6 6-8
Толщина цинкового покрытия, мкм 40-60 60-80

На стенки внутренней и наружной части корпуса РГСД – 50 м³ наносится дополнительная защита от коррозии. Для резервуаров подземного исполнения рекомендуется использование стойких битумных мастик или эпоксидного покрытия. Снаружи изделия окрашены. По умолчанию – цвет серый, по требованию заказчика любая расцветка из каталога RAL.

Характеристики РГСД – 50 м³

Резервуары с двойным корпусом выдерживают температурные перепады и сохраняют форму в местах эксплуатации с неустойчивым грунтом.

Таблица 2. Эксплуатационные характеристики

Характеристика Допустимые параметры
Допустимая температура среды 0 – 90°С
Давление рабочей среды 0,04 МПа – при плоском днище; 0,07 МПа– при коническом днище
Плотность рабочей среды кг max 1200 кг/ м³
Интервал температур в месте эксплуатации  От –60 °С до +90°С
Разрешенная высота засыпания грунтом 1.2 м

Теоретически рассчитанный срок службы, при правильной эксплуатации, составляет не менее 12 – 15 лет.

Комплектация РГСД-50

Резервуар горизонтальный, с двойным корпусом, емкостью 50 м³ комплектуется:

  • дыхательными трубками и клапанами для отвода конденсата;
  • приборами контроля уровня рабочей среды и автоматикой для подачи сигнала при достижении предельного уровня;
  • оборудованием для присоединения труб системы наполнения и слива;
  • приспособлениями для полной очистки полости;
  • смотровыми площадками, ограждениями, съемными лестницами.

Материалы, комплектующие детали и оборудование прошли сертификацию на соответствие ГОСТ.

Достоинства РГСД – 50 м3 от Завода РиНМ

Завод Резервуаров и Негабаритных Металлоконструкций известен как опытный и ответственный производитель. Резервуары произведенные на предприятии имеют запас прочности и продолжительный срок службы.

Высокое качество продукции обеспечивается:

  • компетентной технической службой;
  • современным оснащением производственных подразделений;
  • высококвалифицированным персоналом;
  • строгим соблюдением технологического процесса;
  • контролем на каждом этапе.

Наша цена на двухстенные горизонтальные резервуары экономически обоснована и ниже цены конкурентов.

Заказать РГСД – 50м³ можно по телефону или прислать заявку с техническим заданием на наш электронный адрес. Заполнение опросного листа поможет выполнить заказ, на 100% удовлетворяющий пожеланиям потребителя. Организуем доставку и монтажные работы.

Преимущества

  • Цены от производителя

  • Гарантия качества

  • Комплектация объектов под ключ

  • Производим монтаж/демонтаж

  • Оперативная доставка в любой регион

  • Быстрые сроки поставки,
    четкое соблюдение сроков

  • Персональный подход

  • Гарантийное обслуживание

  • Разработка КМД от 2-х
    рабочих дней

  • Составление КП от 15 минут

Подготовим коммерческое предложение
с учетом ваших индивидуальных технических требований

Скачать опросный лист

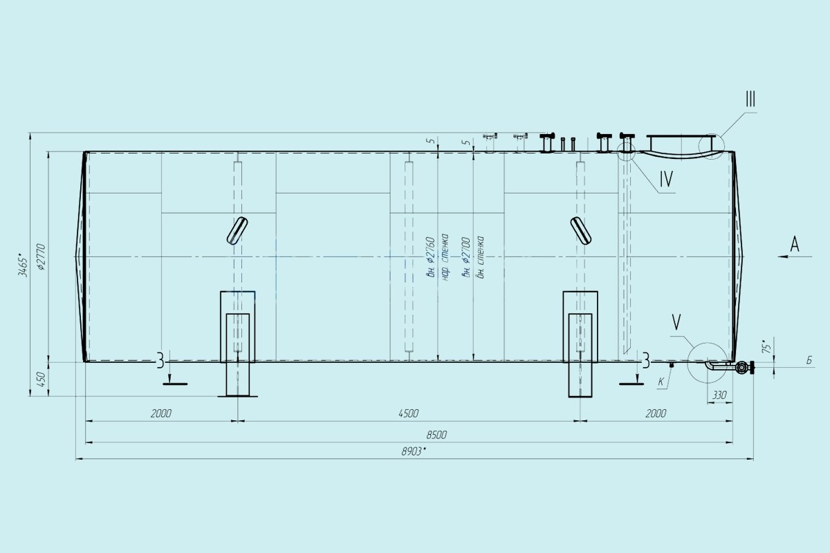
Технические характеристики

ОБОЗНАЧЕНИЕ НАЗНАЧЕНИЕ
А люк-лаз
Б патрубок выдачи
В труба наполнения
Г патрубок под уровнемер
Е1, Е2 подвод этиленгликоля
Ж патрубок отвода паров
К патрубок слива межстенной жидкости
Л патрубок под СМДК-100
М патрубок сигнализатора уровня

 

Чертеж

Чертеж Двустенный горизонтальный резервуар РГСД-50 м3

Доставка

Чтобы избавить Вас от необходимости поиска логистической компании, мы готовы взять на себя работу по осуществлению доставки оборудования на Ваш объект.

Преимущества осуществления доставки при помощи нашей компании:

  • Работа только с проверенными временем подрядчиками
  • Четкое соблюдение сроков
  • Разумные цены
  • При необходимости, груз можно застраховать
  • Стоимость услуги рассчитывается индивидуально, в зависимости от региона доставки и объема груза.

Свяжитесь с нашим менеджером по телефону или через форму сайта и мы подготовим для Вас расчет.

Скачать опросный лист