Резервуары и металлоконструкции
от завода-производителя

Доставка по всей России!

slide-s02

Резервуар вертикальный РВС 25 м3

Резервуар вертикальный РВС 25 м3

Резервуар вертикальный РВС-25м3 имеет цилиндрическую форму, располагается вертикально. Данная стальная емкость предназначена для хранения, выдачи и учета жидких веществ. Она может использоваться в составе парка резервуаров, а также как самостоятельное изделие. Приобрести реализуемые конструкции предлагает Завод РиНМ. Доставка оборудования производится по всем регионам РФ и в страны ближнего зарубежья.

Особенности, характеристика РВС-25 м3

Резервуары вертикальные РВС-25м3 проектируются и изготавливаются с использованием следующих стандартов: СТО-СА-03-002-2009.

Конструкция емкости предусматривает несущий каркас, который снабжен кольцами жесткости. Благодаря такому исполнению изделия обладают точными размерами и не меняют свою геометрию в течение всего времени эксплуатации.

Реализуемая продукция комплектуется необходимой запорной арматурой. Для обслуживания и защиты резервуаров устанавливаются следующие изделия:

  • люки;
  • лестничные комплексы с ограничителями;
  • площадки с перильным ограждением;
  • молниеотводы, заземляющие элементы.

При изготовлении оборудования применяются стальные сплавы Ст3, 09Г2С. Для получения емкостей, используемых для хранения пищевых продуктов и питьевой воды, используются материалы из нержавеющей стали.

Крыша реализуемых изделий может быть выполнена в форме: плоскости, конуса, купола, сферы или понтона. Благодаря использованию несущего каркаса конструкция кровли может выдерживать большую массу снега, а также периодически возникающие внутри резервуара вакуумные нагрузки.

Таблица 1. Технические характеристики

Параметры

Значения

Объем, м3

25

Температура  среды, 0С

от 65 до 260

Максимальный уровень давления, МПа

0,05

Возможность эксплуатации при вакууме, кПа

до 0,5

Уровень сейсмической активности района установки, балл

9

Плотность среды, кг/м3

не более 1000

Уровень расчетного давления, МПа

0,07

Количество поясов конструкции, шт

 

Толщина стенки и днища резервуара, мм

3

Толщина настила крыши, мм

5

Эксплуатационный период, лет

не менее 20

Для соединения частей емкости используются сварочные работы, которые завершаются зачисткой швов и видимых поверхностей изделия. В качестве антикоррозийного покрытия применяются грунтовочные составы, а также полимерные изделия на основе битумных смол.

Работы по изготовлению реализуемых резервуаров контролируются сотрудниками отдела ОТК. На основании проверки выдаются соответствующие сертификаты качества.

Монтажные операции

Резервуар вертикальный РВС-25м3 отгружается в готовом к эксплуатации состоянии. Для его установки требуется предварительное обустройство фундаментной подушки. Фундамент должен обладать высокими прочностными характеристиками, иметь металлические закладные элементы. Конструктивные особенности фундаментной подушки рассчитываются в соответствии с условиями места установки резервуара. Для упрощения установки емкости место установки снабжается металлическими ложементами. 

Данные предоставляемые при оформлении заказа           

Оформить заявку на изготовление резервуара достаточно просто. Для этого достаточно заполнить опросный документ, который представлен на странице товара. От клиента потребуются предоставить следующие сведения

  • общие данные;
  • условия эксплуатации;
  • конструктивно-технологические параметры;
  • дополнительные данные и особые условия;
  • патрубки и люки.

Данный объем информации позволяет подготовить резервуар под требования заказчика. Данную информацию необходимо отправить на наш адрес электронной почты, либо по номеру факса.

Транспортировка

Транспортировка резервуаров выполняется при помощи автомобильного и железнодорожного транспорта, который используется для перевозки крупногабаритных грузов. Погрузочные операции и выгрузка продукции производятся при помощи крановой техники.  

Как купить

Чтобы оформить заказ, получить дополнительные сведения обращайтесь к нашим специалистам. Они помогут подать заявку, подобрать продукцию в соответствии с вашими требованиями. Мы всегда рады помочь. На всю реализуемую продукцию оформляется официальная гарантия. Для постоянных клиентов существуют специальные предложения, бонусные программы, скидки.

 

 

 

Рассчитать стоимость или купить "Резервуар вертикальный РВС 25 м3" от Завода Резервуаров и Негабаритных Металлоконструкций вы сможете всегда в короткие сроки.

Широкая номенклатура изготавливаемая нашим предприятием ценится надежностью конструкций и высокими техническими характеристиками, мы изготавливаем как габаритные так и негабаритные металлоконструкции и прочие металлоизделия,  емкости, сосуды, аппараты.

Весь штат нашего предприятия – это высококвалифицированные специалисты !

Собственный цех горячего оцинкования , позволяет произвести антикоррозионное покрытие согласно нормативам по ГОСТ 9.307-89, а так же покрытие от коррозии и старения по ГОСТ 9.302-88, ГОСТ 9.308-85, ГОСТ 9.301-86, 9.306-85, СП 28.13330.2012.

Так же мы всегда готовы предоставить услуги по огнезащитной обработке и конструктивной огнезащите по ГОСТ Р 53295-2006

РазработкаКМД– от 1-го дня.

Перевезем, доставим все необходимые металлоконструкции, комплектующие и емкости до Вашего объекта в любой город России!

Для оформления заказа и определение ценовой политики в Екатеринбург на "Резервуар вертикальный РВС 25 м3" Вам достаточно набрать по телефону +7 (343) 214-34-49 или отправить заявку на наш электронный адрес ekaterinburg@rezervuar-met.ru

Преимущества

  • Цены от производителя

  • Гарантия качества

  • Комплектация объектов под ключ

  • Производим монтаж/демонтаж

  • Оперативная доставка в любой регион

  • Быстрые сроки поставки,
    четкое соблюдение сроков

  • Персональный подход

  • Гарантийное обслуживание

  • Разработка КМД от 2-х
    рабочих дней

  • Составление КП от 15 минут

Подготовим коммерческое предложение
с учетом ваших индивидуальных технических требований

Скачать опросный лист

Технические характеристики

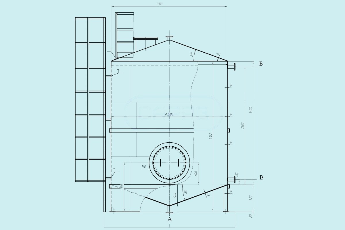
А-патрубок слива, Б-патрубок для установки уровнемера, В-патрубок для налива

Чертеж

Чертеж Резервуар вертикальный РВС 25 м3

Доставка

Чтобы избавить Вас от необходимости поиска логистической компании, мы готовы взять на себя работу по осуществлению доставки оборудования на Ваш объект.

Преимущества осуществления доставки при помощи нашей компании:

  • Работа только с проверенными временем подрядчиками
  • Четкое соблюдение сроков
  • Разумные цены
  • При необходимости, груз можно застраховать
  • Стоимость услуги рассчитывается индивидуально, в зависимости от региона доставки и объема груза.

Свяжитесь с нашим менеджером по телефону или через форму сайта и мы подготовим для Вас расчет.

Скачать опросный лист